Cocina y Comedor del Hotel Rural El encanto del Moncayo
Cocina y Comedor del Hotel Rural El encanto del Moncayo
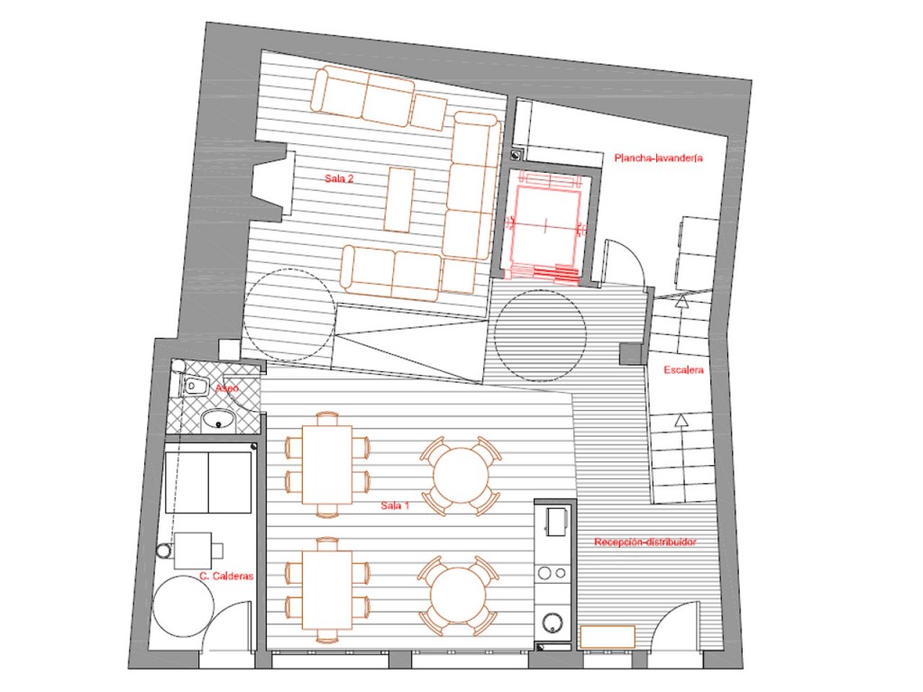
Sala de estar y escalera de acceso a las habitaciones en el Hotel Rural El encanto del Moncayo
Sala de estar y escalera de acceso a las habitaciones en el Hotel Rural El encanto del Moncayo






